kivi-item-image
Sinun kotisi

Rälssinkatu 8 as 4 / Omakotitalo

VHP 1 950 000 €

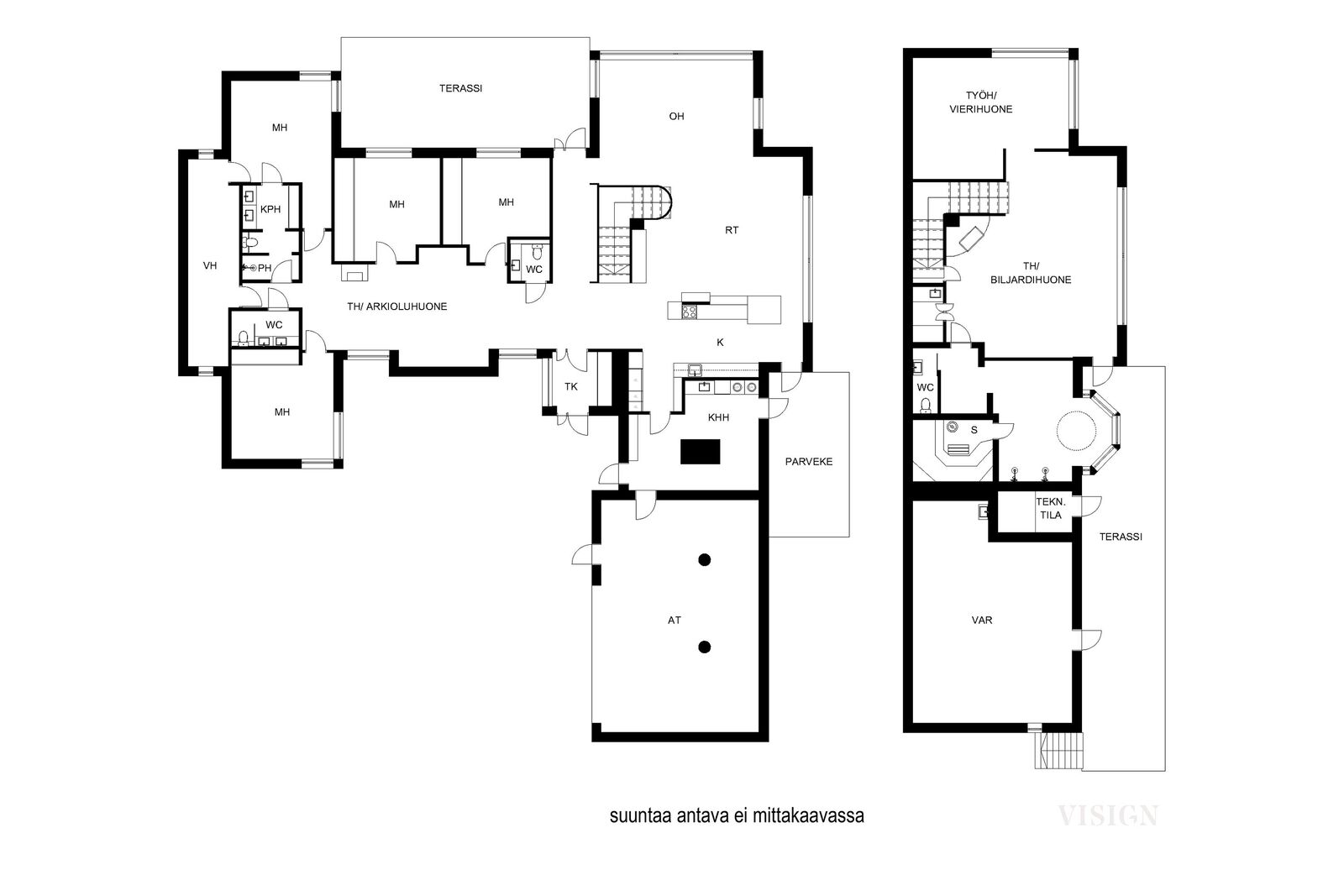
4 mh + et + oh + k/rh + khh + wc/ph/s + wc/ph + 2wc + takkah. + viini/työhuone + minikeittiö + 2-3 auton talli + isot terassit..

Rakennusvuosi 2004

Poikkeuksellisen tilava ja valoisa koti merinäkymillä! Kun astut tämän kodin pihaan, huomaat heti, että kyseessä ei ole mikä tahansa talo, vaan arkkitehdin suunnittelema talo on rakennusliikkeen rakentama avaimet käteen periaatteella, ajaton ja laadukas kokonaisuus, jossa jokainen yksityiskohta on tarkoin harkittu. Poikkeuksellisen tilavat ja valoisat huoneet kutsuvat sisäänsä, ja suurista ikkunoista avautuva merinäkymä tekee vaikutuksen kerta toisensa jälkeen. Avarat tilat eivät ole ainoastaan kauniita, vaan myös toimivia – mittasuhteet ovat kohdillaan, ja kodin pohjaratkaisu palvelee sekä arkea että juhlaa. Talo sijaitsee isolla ja toimivalla tontilla, joka tarjoaa harvinaista yksityisyyttä ja rauhaa. Piha on kuin oma keidas, jossa on tilaa leikkiin, oleskeluun ja nautiskeluun. Useat terassit eri ilmansuuntiin mahdollistavat sen, että voit valita aina parhaan paikan auringonpaisteeseen tai varjoon – aamukahvit idässä, iltapäivän rentoutus lännessä ja illallinen auringonlaskua ihaillen. Arjen mukavuutta lisää ratkaisu, jota moni arvostaa: autotallista on suora kulku asuintiloihin. Tämä tekee kotiinpaluusta sujuvaa säällä kuin säällä ja tuo käytännöllisyyttä perheen jokapäiväiseen elämään. Ylellinen kellarikerros tarjoaa täydellisen ympäristön rentoutumiseen ja viihtymiseen, joten monikäyttöiset tilat kellarikerroksessa ovat arjen luksusta parhaimmillaan. Tilava spa-osasto on varusteltu kaikilla herkuilla – iso sauna kutsuu lempeisiin löylyihin, ja tunnelmallinen takkahuone massiivisella takalla luo lämpimän ja kutsuvan ilmapiirin. Takkahuoneen yhteydessä sijaitsevat puuvarasto, vaivattoman rentoutumisen mahdollistava käytännöllinen minikeittiö ja luokseen kutsuvat terassit. Alakerrasta löytyy myös erittäin tilava huone, joka muuntuu tarpeen mukaan – työhuoneeksi, lisämakuuhuoneeksi tai vaikka upeaksi viininmaistelutilaksi. Tilan kruunaa käsityönä tehty, näyttävä salmiakkihyllykkö viineille – täydellinen yksityiskohta intohimoiselle viininharrastajalle. Tämä koti ei ole vain talo – se on paikka, jossa yhdistyvät valo, tila, rauha ja merellinen tunnelma. Se on suunniteltu perheelle, joka arvostaa laatua, mutta myös kodikkuutta. Se on koti, jossa voit hengittää vapaasti ja elää juuri oman näköistäsi elämää. Jos etsit kotia, joka tarjoaa tilaa unelmille, yksityisyyttä arkeen ja näkymiä, joihin et kyllästy koskaan, tämä koti on vastaus. Tämä upea koti halutaan myydä nyt nopeasti, koska uuteen kotiin on jo muutettu. Tule siis kanssani tutustumaan tähän kotiin ja sen myötä onnistuneille asuntokaupoille. Lisätiedot esittelyt sinulle tästä uniikista kodista tarjoaa IN LKV Oy/Sari Kuusisto 050-2556, tai [email protected]. Tutustu meihin www.inlkv.fi ja varmista myös oman kotisi onnistunut myyntiprosessi heti ensimmäisellä kerralla. Käytössäsi on myös ilmainen sisustussuunnitteluohjelma (ei toimi mobilessa, ainoastaan pöytäkoneella tai läppärillä). Otathan yhteyttä, mikäli saamme hoitaa myös sinun kotisi kaupan. Teemme sen ilolla, ammattitaidolla ja alan ylivoimaisesti parhailla palvelupaketeilla.

1

Perustiedot

dropdown

Kohde Etuovessa

21821291

Tyyppi

Omakotitalo

POSTINUMERO

20900
Kerros 2/2
Huoneistoselitelmä 4 mh + et + oh + k/rh + khh + wc/ph/s + wc/ph + 2wc + takkah. + viini/työhuone + minikeittiö + 2-3 auton talli + isot terassit.

ASUINTILOJEN Pinta-ala

466.0 m²

Kokonaispinta-ala

545.0 m²

Lisätietoja pinta-alasta

Ilmoitetut pinta-alat ovat rakennuslupapiirroksen kerrosaloja, ei siis asuinpinta-aloja. 1. kerroksen kerrosala on 356 m2, kellarikerroksen kerrosala 110 m2. Lisäksi kiinteistön autotallin kerrosala on 79 m2. Lisäksi talon kellarissa on väestönsuojatila, jonka kokonaisala on 79,6 m2. Tila on rauhanaikana myytävän kiinteistön käytössä yksin, mutta palvelee mahdollisissa poikkeustiloissa Rälssinkadun hallinnanjakosopimuksen osakkaita väestönsuojana. Yhteensä talossa on siis tilaa 545 m2 + 79,6 m2.

Rakennusvuosi

2004

Käyttöönottovuosi

2004

Vapautuminen

1 kk kaupanteosta tai sopimuksen mukaan.

Vapautuminen

1 kk kaupanteosta tai sopimuksen mukaan.

HUONELUKU

6 h ja enemmän

Kunta

Turku

Alue

Kaistarniemi
Tontin pinta-ala 20028 m²

Muut tilat

79.0 m²

Lisätietoa muista rakennuksista

Autotalli on erittäin tilava (mahtuu helposti 3 autoa) ja autotallista pääsee siirtymään suoraan kodinhoitohuoneen kautta sisätiloihin. Autotallista on runsaasti myös säilytystiloja ja hyllyjä. Autotallissa on myös voimavirta, joten sähköauton latauslaitteen asentaminen onnistuu helposti.

Rakennusoikeus

600.0

Energiatodistus

Kyllä

Tontin omistus

Oma

Energialuokka

D2018

Lisätietoja rakennusoikeudesta

Rakennusoikeutta on jäljellä 65 m2.

LÄMMITYSJÄRJESTELMÄ

Hyvä. Ilmalämpöpumppuja on 3 kpl ja ilmanvaihtokoneita 2 kpl

Kiinteistötunnus / laitostunnus

853-59-14-5

Lisätietoja energiatodistuksesta

Energiatodistus laadittu 6.10.2025. Voimassa 6.10.2035 saakka.
2

Hintatiedot

dropdown
Velaton hinta 1 950 000 €
Myyntihinta 1 950 000 €

Kiinteistövero

2188,44 €/v

PUHTAANAPITOMAKSUT

30 €/kk
Yhtiövastike €/kk

(Hoitovastike €/kk + Rahoitusvastike €/kk)

Lisätietoja maksuista

Sähkön kulutus on vaihdellut reilusti käyttötottumusten mukaisesti. Sähköä on kulunut 45000-69000 kWh/v, joten ilmoitetut hinnat ovat keskimääräisiä hintoja ja kulutuksissa on mukana myös kesäajan viilennykset. Sähkön kulutus vaihtelee markkinatilanteiden mukaisesti, sekä kulutuksen määrä riippuu merkittävästi jokaisen henkilökohtaisista kulutustottumuksista. Kulutusta saa huomattavasti pienemmäksi lisäämällä mm. ilmalämpöpumppuja, tai asentamalla aurinkopaneeleja. Varainsiirtovero 3 % hyväksytystä kauppahinnasta.
Neliöhinta 4 185 €/m²
3

Lisätiedot

dropdown

Sauna

Saunassa on kokoa ja tyyliä, sekä tunnelman viimeistelee Iki-kiukaan iso pilarikiuas. Saunassa on myös miellyttävästi valoa, sillä pesuhuoneeseen avautuva iso seinä on kokonaan lasitiilestä.

ASUNNON LISÄTIEDOT

Tilava koti tarjoaa myös aputilojen suhteen huikean kokonaisuuden. Tuulikaappi on tilava ja valoisa, sekä vieraille on varattu tilava liukuovikaapisto ulkovaatteita varten. Sisäänkäynti aula aukaisee näkymän oleskelutiloja kohti, mutta myös privaattisiiven arkiolohuonetta kohti, jossa on tunnelman luojana moderni kaminatakka. i Kellaritilassa on avara takkahuone isolla paikalla muuratulla takalla ja tilaan mahtuu helposti myös biljardipöytä. Terasseja on lähes kaikkiin ilmansuuntiin, säilytystilaa runsaasti niin sisätilan isossa vaatehuoneessa, kodinhoitohuoneessa kuin autotallissa ja lisäksi kellaritiloissa on lähes 80 m2 väestönsuoja varasto/harrastetilana.

Muuta kauppaan kuuluvaa

Alakerran jätevedet pumpataan ylempänä olevaan kaupungin viemäriverkostoon pumppaamon avulla.

Asunnon kunto

Hyvä

ASUNNON KUNTO

Talo on rakennettu erittäin vankasti kallion päälle erittäin hyvämaineisen rakennusliikkeen toimesta. Talo on täystiilitalo (kivitalo) ja ikkunat huoltovapailla alumiiniprofiili ikkunakarmeilla. Rakennukseen on käytetty huomattava määrä laadukasta luonnonkiveä ja piha-alue on laadukkaasti viimeistelty.

Makuuhuoneen kuvaus

Kodin 4 makuuhuonetta sijaitsevat kaikki varsinaisessa asuinkerroksessa ja ovat kaikki tilavia huoneita reiluilla säilytystiloilla. Päämakuuhuone on oma täydellinen yksikkönsä, jossa isot ikkunat päästävät maiseman sisätilojen jatkeeksi, terassille avautuu suoraan ovi, aidosti valtavan kokoinen vaatehuone on heti sängyn takana ja oma täydellinen pesutila wc:llä ja tilavilla allastasoilla viimeistelee toiminnallisuuden. Tarvittaessa alakerran viini/työhuoneesta saa myös todella tilavan makuuhuoneen ja myös siellä on koko seinän mittainen liukuovikaapisto valmiina.

Koulut

Väinö Aaltosen koulu 2,8 km, Syvälahden koulu ja Haarlan koulu 3,5 km.

Oleskelutilojen kuvaus

Olohuone täyttyy valosta ja tilantuntu on kerrassaan huumaava. Huonekorkeutta on reilusti normaalia enemmän, joten mittasuhteet ovat onnistuneet, vaikka olohuone on kooltaan todella tilava. Isot ikkunat avaavat näkymän kauas jyrkästi laskevan tontin vuoksi, sekä myös meri kimmeltelee mukavasti. Vieressä oleva huikean kokoinen ruokailutila viimeistelee oleskelutilojen toimivuuden. Juhlien toimivuuden maksimoi portaikon päälle teetetty massiivinen pöytätaso, joka toimii keskellä olohuonetta näyttävänä tarjoilupöytänä. Tämän tason saa helposti siirrettyä myös esim. autotalliin, jolloin massiivinen portaikko puolestaan pääsee oikeuksiinsa.

PALVELUT JA LIIKENNEYHTEYDET

K-Market Moikoinen 2,6 km (kävellen 2,3 km), K-Market Deli 3,1 km (kävellen 2,5 km, K-Supermarket 3,1 km.

Päiväkoti

Päiväkoteja, kuten koulujakin on alueella useita.

Keittiön kuvaus

Tässä keittiössä on kokoa, laatua ja tyyliä. Keittiön valmistajana Snaidero on tunnettu huikeasta laadustaan, joten tasokkaampaa keittiötä on vaikea löytää. Maalipinnat ovat mm. useita kertoja maalattu ja hiottu, joten maalit myös pysyvät pinnoissa poikkeuksellisen hyvin. Aidot mustat kivitasot viimeistelevät tyylin ja laadun, sekä toiminnallisuuden kruunaa tilava kaasu/induktioliesi. Kodinkoneet ovat integroituja ja kylmätilaa on reilusti. Lisäksi alakerran takkahuoneen yhteydessä on ns. minikeittiö, jossa on myös kivitaso, allaskaapisto ja jääkaappi, sekä hieman säilytystilaa.

TEHDYT REMONTIT

-2017: molemmat lämminvesivaraajat uusittu. -2018: Khh, eteinen ja pikku wc:n lattia pinnoitettu mikrosementillä (työn teki Sepri). Kiuas ja alakerran ph:een kaapit uusittu ja kaikkien märkätilojen laatat maalattu. 2019: keittiön uuni, liesitaso ja apk uusittu. Keittiöstä on myös uusittu 1 jääkaappi, sekä khh:ssa pyykinpesukone ja kuivausrumpu uusittu (ajankohta ei tarkalleen muisteta). 2020: ilmanvaihtokanavat puhdistettu ja koneet huollettu (samalla vaihdettu yläkerran iv-kone). 2022: asennettu 2 uutta ilmalämpöpumppua.

Pesutilojen kuvaus

Alakerran spa-osasto on todella tilava, sekä isot ikkunat päästävät maiseman lisäksi luonnonvalon tulvimaan tiloihin. Varusteena 2 suihkua, iso poreallas, tasotilaa, erillinen pukuhuone ja wc. Yläkerran master bedroomin pesuosasto on tilavat allaskaapisto ja meikkitilat, sekä wc ja suihkutila. Suihkut ja hanat ovat Axor Citterion design-vesikalusteita.

Säilytystilojen kuvaus

Säilytys/harrastetiloja on huikea määrä. Kaikki tilat ovat siistissä kunnossa. Kodinhoito- ja vaatehuone ovat todella isoja, sekä kellarin varasto (väestönsuoja on lähes 80 m2).

Khh:n kuvaus

Kodinhoitohuoneesta pääsee sekä taka- että etupihalle, kodin keittiöön sekä autotalliin. Kodinhoitohuone on todella tilava, mutta yleisilma on silti saatu pidettyä tyylikkäänä ja eleettömänä. Isot liukuovikaapistot tarjoavat ylelliset säilytystilat ja lisäksi kaapistotilaa on vielä reilusti.

Seinämateriaalien kuvaus

Seinämateriaali kuivissa tiloissa on maalattua lasikuitutapetti, joka on erittäin toimiva valinta täystiilitalon sisäpintoihin. Nykyään on markkinoilla tarjolla myös ns. tasoitetapetti, mikäli haluaa seinäpinnoista sileän. Luonnollisesti tasoituksen voi tehdä myös laastilla, jolloin lasikuitutapetti alusmateriaalina on todella hyvä valinta.

Rakennusmateriaalien kuvaus

Talo on kokonaisuudessaan täystiilitalo. Ulkoseinät ovat kaksikertaista tiilimuurausta, joiden välissä on lämpöeristys. Kellarin seinät ovat teräsbetonia, jonka lisäksi sisäseinän pinnat on kuorimuurauksella.

Muut tiedot

Talo on kauttaaltaan rakennettu ammattilaisten toimesta.

Tulisija

Toinen takka on arkiolohuoneessa ja toinen kellaritilan takkahuoneessa. Takat eivät ole varaavia.

WC:n kuvaus

Vieras wc palvelee loogisesti heti eteisaulan yhteydessä. Lattia on mikrosementtiä, seinä isoa marmorikuvioista laattaa. Seinämalli WC, tilava allastaso ja Axor Citterion hana. Alakerran spa-osaston yhteydessä erillinen wc-tila Axor Citterion hanalla ja seinämalli wc:llä. Arkiolohuoneen ja makuuhuoneiden päässä on tilava pesutila, 2 altaan taso kunnon kaapistoilla, sekä seinämalli-wc. Axor Citterion hanat ja kivitaso. Päämakuuhuoneen yhteydessä oma pesutilakokonaisuus, jossa allastaso mustaa kiveä, meikkitaso puuta, seinämalli-wc ja Axor Citterion hana sekä suihku.

LISÄTIETOA TONTISTA

Tontti (koko alue 2,0028 ha) on jaettu hallinnanjakosopimuksella usean omistajan kesken. Myytävän kokonaisuuden osuus hallinnanjakosopimuksen mukaisesti on 600/3400 ja myytävän tontin koko on n. 3600 m2. Myytävään kokonaisuuteen kuuluva tontti on etupihan osuudelta täysin viimeistelty ja varsinaista hoidettavaa piha-aluetta jää varsin vähän, sillä takapihan terassien ulkopuolelta tontti viettää reilusti alaspäin ja korkeusero luo samalla vaikuttavan näkymän. Tämän kaupan yhteydessä on myös mahdollista ostaa viereinen rakentamaton tontti, joka muodostaa hallinnanjakosopimuksesta 550/3400 osan.

Lattiamateriaalien kuvaus

Lattiapinnat kuivissa tiloissa on valtaosin extra leveää merbausta valmistettua lankkuparkettia. Tummat lattiat ovat jälleen nouseva trendi, joten nämä lattiapinnat on helppo halutessaan hioa ja lakata ennen muuttoa. Eteisessä ja sen yhteydessä olevassa wc-tilassa on mikrosementti.

Liikenneyhteydet

Bussipysäkki n. 450 m.
4

Taloyhtiön tiedot

dropdown

Tontin pinta-ala

2.0028 m²

Kirjattu hallinnonjakosopimus

Kyllä

Kohteen seuraava yleisesittelyaika ei ole vielä tiedossa. Ota yhteyttä ja pyydä yksityisesittely!

Välittäjän kuva

Kohdetta myy

Sari Kuusisto

050-2556 [email protected]